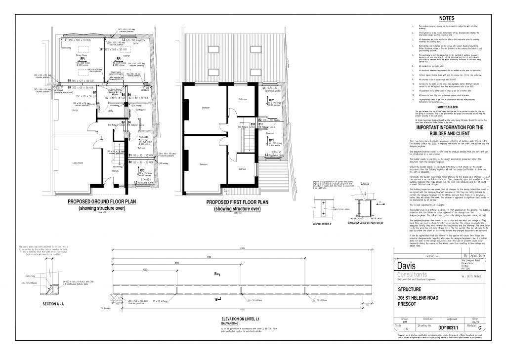
This was a residential project that extended a 1930s property. The architectural drawings were produced by an architect, and we produced the structural calculations and details. The project involves producing the structural design for a single-storey rear and two-storey side extension. The project involved removing the rear wall of the house, creating an open-plan kitchen-diner living area. To help the builder on site, it was decided that a splice detail would be put on the beams supporting the rear wall to make it easier to move on site.
