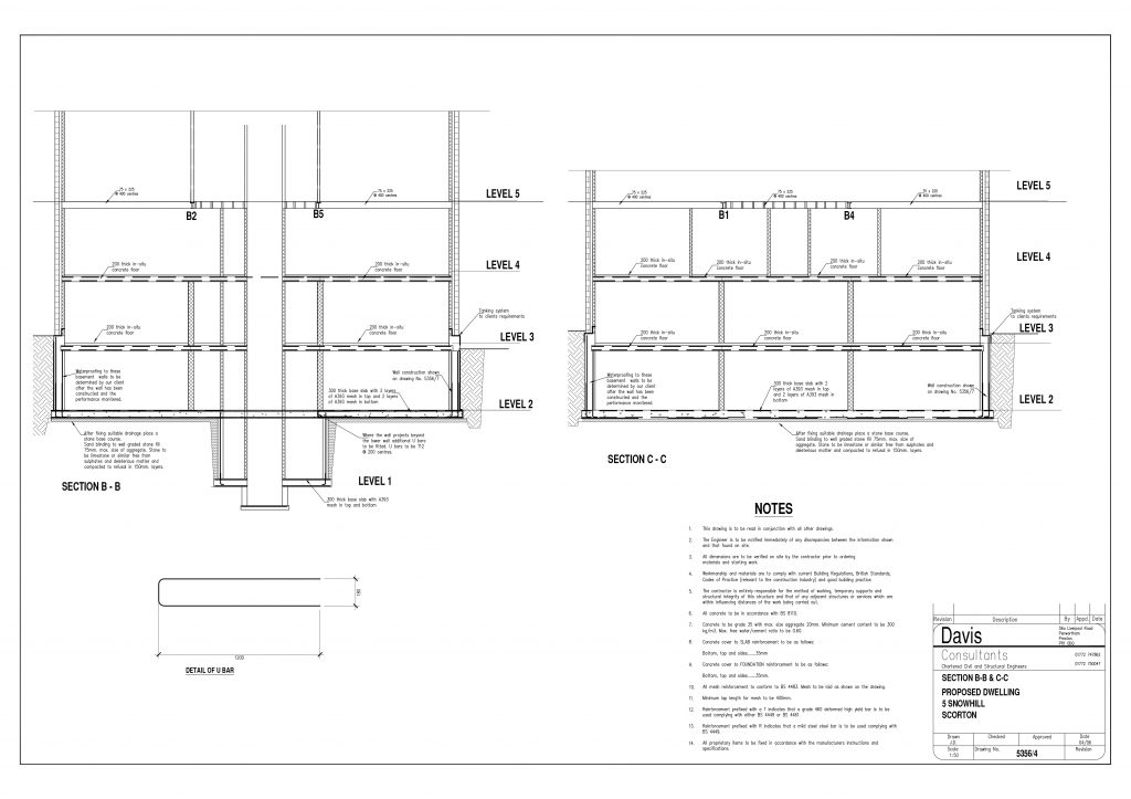
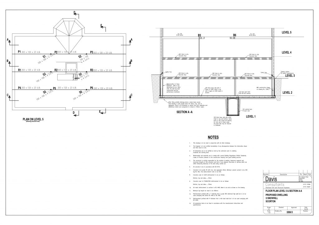
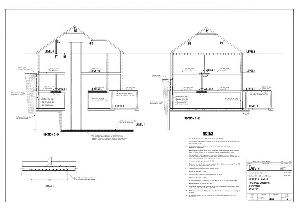
This project involves the construction of a new house; there is a considerable slope to the ground level around the house. The house is built on five levels, with three levels being a basement and requiring a retaining wall. For this project, we produced the retaining wall designs, superstructure and foundation design.
