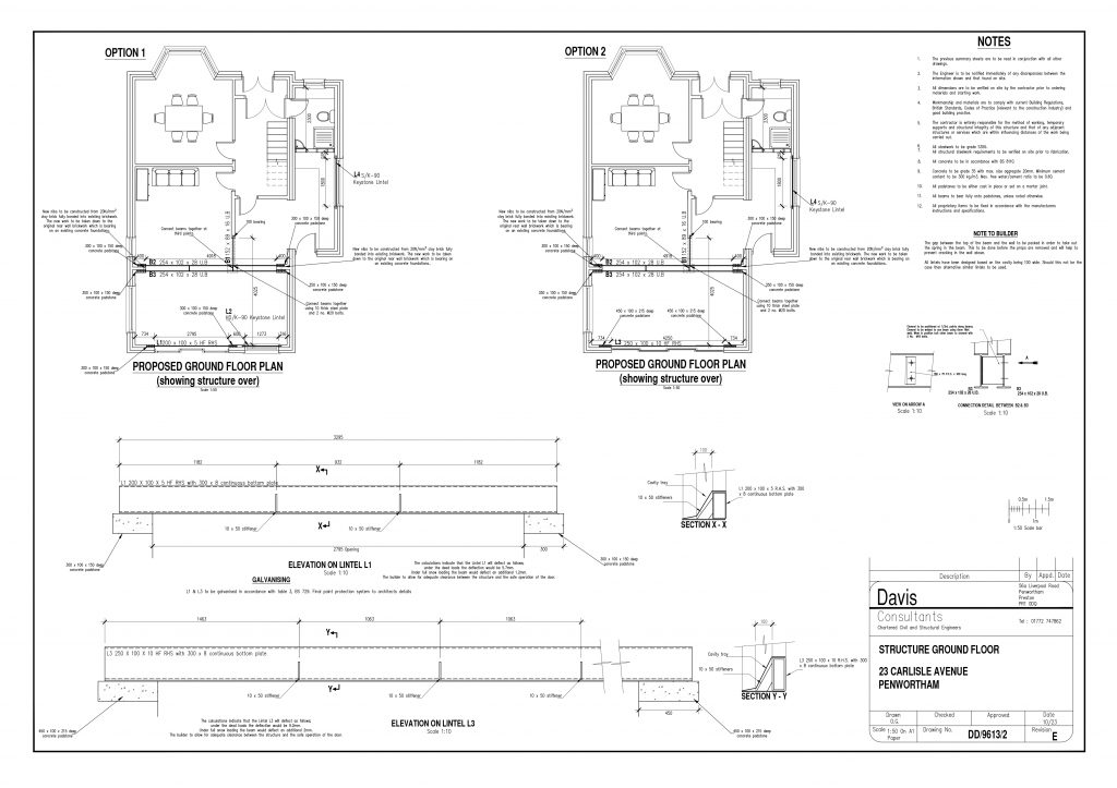
This was a residential project making a 1930s house work for a family in 2024. The existing house was dark to the rear elevation with little light entering the property. The client wanted to make the kitchen a key feature of the home, with this being the heart of the house. The project involves removing the rear wall of the house, creating an open plan kitchen-diner, and creating a 4m opening with sliding doors to maximise light.
