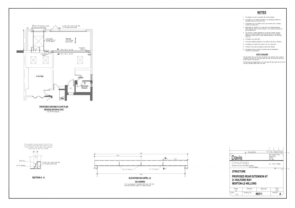
This was a residential project that extended a 1930s property. The architectural drawings were produced by an architect, and we produced the structural calculations and details. The project involves producing the structural design for a single-storey rear extension. The property had had a previous single-storey rear extension, which required 2 beams to create an open-plan kitchen-diner into the new extension. To the rear wall, 5m bifold doors were designed to maximise natural light.
